
(SCROLL)
GANDHI APARTMENT
Refined Simplicity by the Park
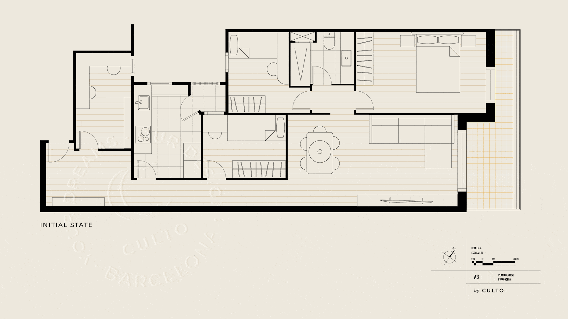
Located in Barcelona’s vibrant Poble Nou district, just minutes from the beach and overlooking the Mahatma Gandhi Park, this 80-square-meter apartment presented both an architectural and spatial challenge. Originally built in the 1970s, the residence featured low ceilings and a fragmented layout with four small bedrooms connected by narrow corridors — a configuration that limited both light and flow.
Our intervention began with a complete reconfiguration of the plan, transforming the outdated apartment into a spacious one-bedroom home defined by openness, comfort, and coherence. By removing internal partitions, we created a large, continuous living area that brings together kitchen, dining, living, and home office functions in one fluid, luminous space. Integrated storage solutions were discreetly incorporated throughout, ensuring visual calm and everyday practicality.
The design language is guided by neutral tones and natural materials, chosen to evoke warmth, serenity, and timelessness. Against this quiet backdrop, we introduced moments of character and sophistication through selected high-end materials— a striking green marble kitchen, a custom walnut bar table, and carefully curated finishes that bring depth and texture.
Rather than adding excess, the project focuses on precision and restraint— crafting a balanced, contemporary interior where quality materials, soft light, and thoughtful proportions define the atmosphere. The result is a home that feels both grounded and elevated — a serene retreat with a clear sense of place, overlooking the green heart of the neighborhood.
DATE
2025
AREA
80 sq. m.
LOCATION
Poble Nou, Barcelona
SHARE














Ready to begin your project?
Let’s turn your vision into a space that tells your story.

